Zapytanie o oszacowanie wartości zamówienia
Przedmiotem zamówienia jest:
Zespół Parków Krajobrazowych Pojezierza Iławskiego i Wzgórz Dylewskich na podstawie § 6 Regulaminu udzielania zamówień publicznych przez Zespół Parków Krajobrazowych Pojezierza Iławskiego i Wzgórz Dylewskich, na potrzeby realizacji projektu pn.: „Podniesienie standardu bazy technicznej i wyposażenia parków krajobrazowych województwa warmińsko - mazurskiego” zamierza w najbliższym czasie zlecić zadanie pn.: ”Zaprojektowanie i wykonanie aranżacji ekspozycji przyrodniczej wraz z niezbędnym wyposażeniem sal: edukacyjnej, wystawowej, prowadzącego do sal korytarza wraz z klatką schodową i korytarzem wejściowym do budynku – siedziby Zespołu Parków Krajobrazowych w Jerzwałdzie” wraz z niezbędnym wyposażeniem ,zgodnie z opisem przedmiotu zamówienia stanowiącym załącznik do niniejszego zapytania.
Załączniki
Treść ogłoszenia
- Sala szacowanie zamowienia Jerzwałd
- OPZ_Jerzwałd
- ZAŁ. FUNKCJONALNO -PROGRAMOWE_Jerzwałd
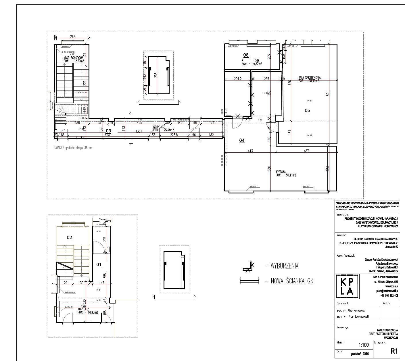
- Rzut pomieszczeń_Jerzwałd
- Koncepcja_ OPIS
- Koncepcja_rzut_pomieszczen
- zał5_1 Koncepcja_wizualizacja_ W1
- zał5_2 Koncepcja_wizualizacja_ W2
- zał5_3 Koncepcja_wizualizacja_W3
- zał5_4 Koncepcja_wizualicacja_ W4
- zał5_5 Koncepcja_wizualizacja_ W5
- zał5_6 Koncepcja_wizualizacja_ W6