Wersja nieobowiązująca z dnia
Zaprojektowanie i wykonanie aranżacji ekspozycji przyrodniczej wraz z niezbędnym wyposażeniem sal: edukacyjnej, wystawowej, prowadzącego do sal korytarza wraz z klatką schodową i korytarzem wejściowym do budynku – siedziby Zespołu Parków Krajobrazowych w Jerzwałdzie
Załączniki
Treść ogłoszenia
SIWZ
- Załącznik nr 11 przedmiar
- Załącznik nr 11 koncepcja plastyczna i wytyczne wykonawcze
- SIWZ Sala + załączniki 1-7,9,10
- Załącznik nr 11 prace budowlane
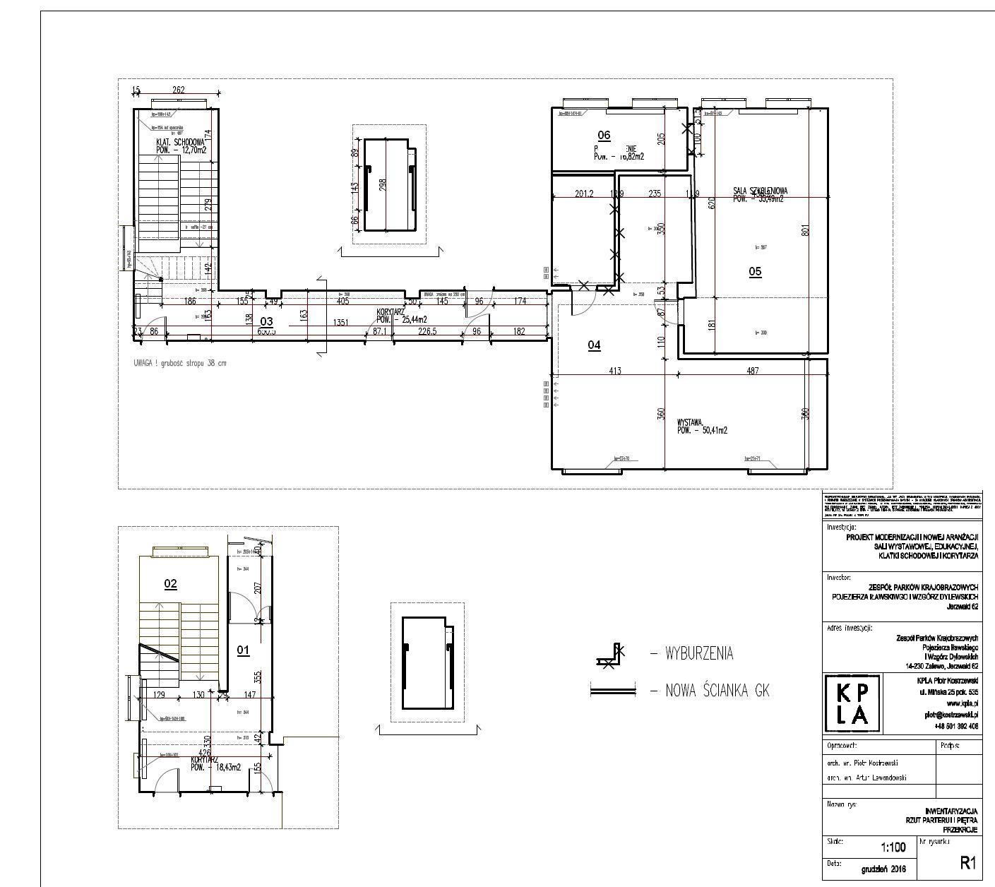
- Załącznik nr 8 rzut pomieszczeń z oznaczeniami
- Odpowiedzi na pytania i zmiana terminu składania ofert
- Odpowiedzi na pytania